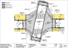
Le traitement du carrefour répond au schéma fonctionnel demandé. Par sa composition, il conserve un traitement urbain où tous les usagers ont leurs espaces et affirme sa vocation de place en exprimant par les matériaux, le mobilier urbain et les plantations la rupture de continuité voulue entre la rue Hoche et l’avenue Smith Champion.
Le troisième secteur d’aménagement est la rue du Port jusqu’à la Place Maurice Chevalier. L’ensemble des aménagements proposés constitue ainsi un itinéraire de circulations douces (cycles) en relation avec les liaisons cyclables à venir entre Paris (via le Bois de Vincennes et les bords de Marne). Ils favorisent la desserte et la mise en valeur du pôle d’équipement constitué par la piscine, le port, et le stade.

